Clicky989de6f002f98de6.html

PADRA Building Group

گروه ساختمانی پـــــــــادرا

​Home​​​​​​​

HOME

​هم بنیانگذار و مدیر معماری کنسرسیوم برون کشوری Future Build

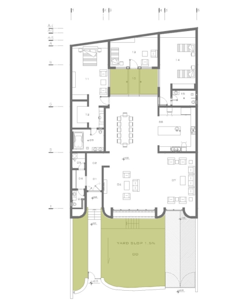
321-خانه کرشـــــمه
​​​​​​​

کاربری: مسکونی
شرح خدمات پادرا: طراحی
موقعیت: کاشان
مقیاس: 311 مترمربع
تیم: سید محمد امین داروئی، کامیار طلوع بهبود، مریم گلباز، مصطفی لهراسبی، منیر راستاد، ریحانه خسروی، فرهنگ ملک
طراح سازه: حمید ملکی پور
​​​​​​​طراح تاسیسات: علی عباس زاده

Kereshme-House-321
​​​​​​​

Type: Residential
Services by Padra: Design
Location: Kashan
Scale: 311 m²
Team: Seyed Mohammad Amin Darooei, Kamyar Tolou Behbood, Maryam Golbaz, Mostafa Lohresbi, Monir Rastad, Reyhaneh Khosravi, Farhang Malek
Structural Designer: Hamid Malekipour
MEP Designer: Ali Abbas Zadeh